Квартира 48 м2 с видом на Бурдж Халифу и канал Дубая
#SUAE20-115
268
14.04.2026
Характеристики объекта
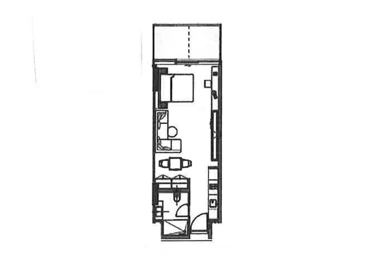
План
1 По запросу
Площадь объекта
48 m²
безопасность
парковка
Узнать точный адрес
Агент не предоставил точный адрес этого объекта
Характеристики объекта
Продажа от ведущего эксперта на международном рынке недвижимости и инвестиций VelesClub Int. Объект был проанализирован и одобрен экспертами компании.
Студия площадью 48 кв.м. расположена на 12-м этаже и уже сдана в аренду. В здании есть детский бассейн, плавательный бассейн, тренажерный зал, многофункциональные открытые пространства и заведения общественного питания. Этот 29-этажный комплекс, созданный известным эмиратским застройщиком, предлагает роскошные студии, однокомнатные, двухкомнатные и трехкомнатные квартиры, отделанные на высоком уровне. Объект обеспечивает значительный рост капитала и высокие арендные доходы. Жилой комплекс с видом на Бурдж Халифу и канал Дубая станет следующей мариной. Проживание здесь — одно из лучших решений в городе, с удобствами на расстоянии рук и сильным чувством общности. Завидное месторасположение в самом сердце Дубая с исключительными видами на башню. В квартире есть балкон, встроенные шкафы, центральное кондиционирование, полностью оборудованная кухня, мебель, телефон, джакузи, крытая парковка, тренажерный зал, прачечная, сауна, парная, бизнес-центр, игровая площадка для детей, фитнес-центр и рестораны. Дополнительные услуги включают управление недвижимостью, маркетинг, поиск арендаторов, подготовку договоров аренды, помощь в переселении арендаторов, осмотр объектов, заявки на Эджари, помощь в поиске свободных объектов, составление инвентаризационного списка, прием депозитов, организацию обслуживания, продление договоров аренды, подготовку отчетов о расходах, подключение коммунальных услуг, борьбу с вредителями и уборку.
Вторичное жилье, продажа от представителя владельца, VelesClub Int. является представителем продавца, безопасная сделка осуществляется под руководством экспертов компании.
Цена включает все доступные услуги международного оператора недвижимости VelesClub Int.: оплата в разных валютах, удаленная сделка, «безопасная сделка», «индивидуальные условия», «оценка портфолио недвижимости», «управление недвижимостью», «Семейный офис»!
Номера телефонов для связи с экспертами компании:
+905066002222 Wapp 24/7✅
Покупаете за границей или планируете бюджет?
Поможем выбрать недвижимость, сравнить районы и провести вас через весь процесс
Получить консультациюЛучшие предложения
в Дубай















