Современная меблированная квартира 2+1 в Мальмё
#SSe 20-09
435
21.01.2026
Характеристики объекта
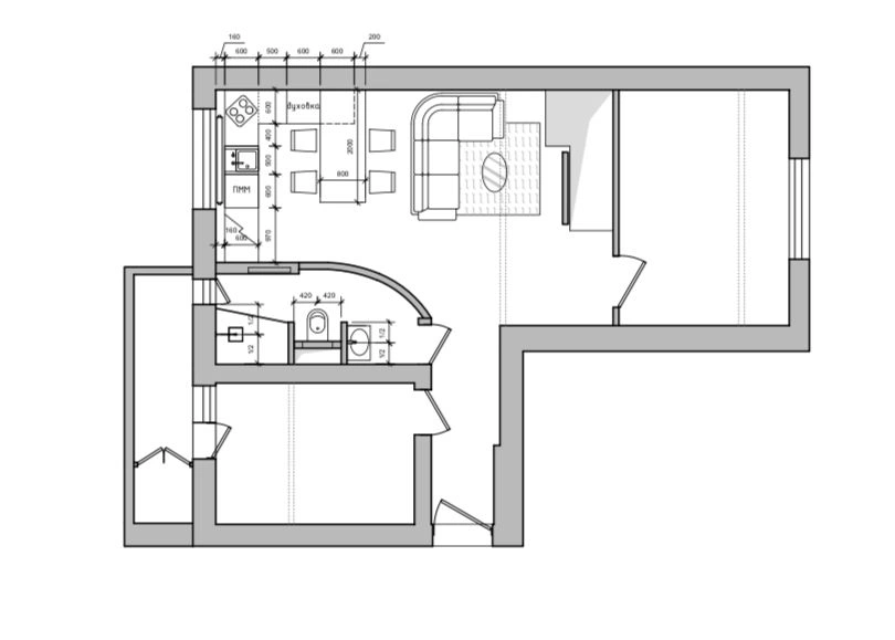
План
2 1
Площадь объекта
73 m²
открытая парковка
с мебелью
благоустроенная территория
Узнать точный адрес
Агент не предоставил точный адрес этого объекта
Характеристики объекта
Продажа от ведущего эксперта международного рынка недвижимости и инвестиций VelesClub Int., объект проанализирован и одобрен специалистами компании.
Светлая квартира с удобной планировкой в Мальмё выставлена на продажу. Общая площадь квартиры — 73 м², включает 2 спальни и гостиную. Рядом с домом развита инфраструктура — медицинские центры, школы и магазины. Мальмё — третий по величине город, крупный экономический и культурный центр, соединённый мостом с Копенгагеном. Стабильный рост цен на недвижимость и высокий спрос на аренду делают этот район привлекательным для инвестиций.
Вторичное жильё, продажа от представителя собственника; VelesClub Int. выступает представителем продавца, безопасная сделка проводится под контролем экспертов компании
В цену включены все доступные услуги международного оператора недвижимости VelesClub Int.: оплата в разных валютах, дистанционная сделка, "безопасная сделка", "индивидуальные условия", "оценка портфеля недвижимости", "управление недвижимостью", "семейный офис"!
Телефоны для связи с экспертами компании:
+905066002222 WhatsApp 24/7 ✅
Объявление не является публичной офертой, цена может изменяться — уточняйте актуальную информацию у наших менеджеров! Звоните ✅
Покупаете за границей или планируете бюджет?
Поможем выбрать недвижимость, сравнить районы и провести вас через весь процесс
Получить консультациюЛучшие предложения
в Мальмё






