Дома в современном жилом комплексе в Лутраки на Крите, Греция
2351892
14.04.2026
Характеристики объекта
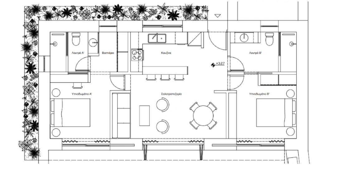
План
По запросу По запросу
Площадь объекта
87 m²
сад
парковка
зона барбекю
терраса
вид на море
открытый бассейн
панорамный вид
Характеристики объекта
Жилой комплекс расположен в Лутраки, в восточной части Крита. Небольшой комплекс новых домов стоит у моря, в окружении холмов и зелёных зон; на каждом участке предусмотрен собственный бассейн.
Проект объединяет частные бассейны и террасы с функциональными открытыми планировками жилых помещений. В каждом доме — объединённая гостиная с кухней, две спальни, две ванные комнаты и гардеробная; площадь участков варьируется от 483 до 524 m², а площадь бассейнов составляет примерно 12 m². Расположение обеспечивает связь с ближайшими городами (Иерапетра – 20 км, Элунда – 65 км, Ираклион – 70 км), что делает объекты подходящими как для постоянного проживания, так и для сдачи в аренду.
Информация предоставлена застройщиком. Сделка сопровождается VelesClub Int.
Обратите внимание: это объявление не является публичной офертой. Пожалуйста, уточняйте актуальные детали у специалистов VelesClub Int. и у официальных представителей в различных странах.
Покупаете за границей или планируете бюджет?
Поможем выбрать недвижимость, сравнить районы и провести вас через весь процесс
Получить консультациюЛучшие предложения
в Крит













