House in a quiet area of Crnuche in Ljubljana, Slovenia
#OSl 20-16
226
14.04.2026
Характеристики объекта
План
3 По запросу
Площадь объекта
164 m²
открытая парковка
Характеристики объекта
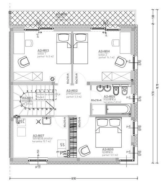
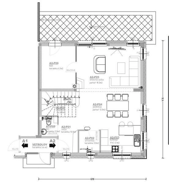
Продается стильный дуплекс в тихом районе Круначе, в непосредственной близости к центру города. Дуплексная квартира площадью 164 м2 находится в современном доме на две семьи с собственным атриумом площадью 250 м2 и просторным балконом. На первом этаже находится светлая гостиная с выходом в атриум, кухня-столовая, кладовая и гостевой санузел. На втором этаже расположены две детские комнаты с выходом на балкон, спальня, ванная комната и техническое помещение. Кроме того, есть незавершенный чердак площадью 55 м2. Дом будет сдан в 2025 году с полной отделкой, оснащен тепловым насосом, системой рекуперации тепла и подготовкой для зарядки электромобиля. К дому прилагаются два парковочных места. Развита инфраструктура района включает школы, детские сады, магазины и рестораны. Бейград — это престижный район Любляны, известный своей отличной экологией и развитой инфраструктурой, что делает его привлекательным для инвестиций в недвижимость из-за стабильного роста цен и высокого спроса на аренду.
Вы можете пройти верификацию и получить номер телефона представителя владельца на нашем сайте или позвонить (написать) напрямую в VelesClub Int., чтобы получить полную информацию об объекте.
+905066002222 Wapp 24/7 ✅
Сделка без посредников, объект и владелец зарегистрированы у международного оператора недвижимости VelesClub Int., объект уникален! Позвоните нам ✅
Покупаете за границей или планируете бюджет?
Поможем выбрать недвижимость, сравнить районы и провести вас через весь процесс
Получить консультациюЛучшие предложения
в Словения






